CLH Commercial Buildings
       
 
 

Factory Direct

• Modular

• Manufactured

• Mobile

 
 
email:
sales@clhcommercial.com
phone:
(888) 321-1537
fax:
(970) 221-1556
 

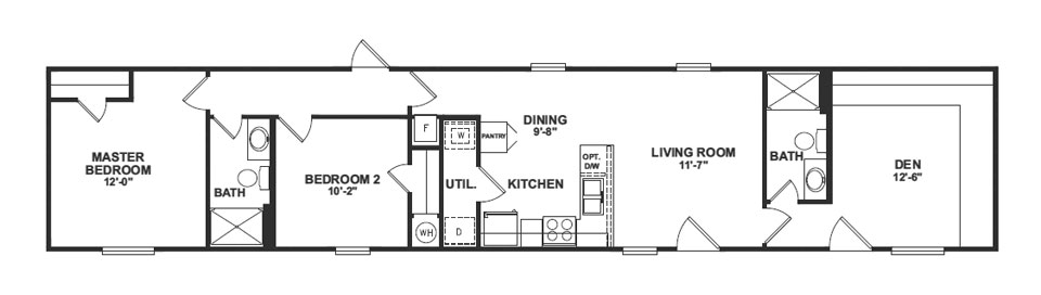
966 sq. ft. Drilling Unit

966 sq. ft. Drilling Unit
phone: (888) 321-1537 email: sales@clhcommercial.com fax: (970) 221-1556
 
website design by FortCollinsWebWorks.com