Factory Direct
• Modular
• Manufactured
• Mobile
email:
sales@clhcommercial.com
phone:
(888) 321-1537
fax:
(970) 221-1556
Home
About Us
Offices
MH Community
Oil Field/Industrial
Government Housing
Modular Duplexes
Contact Us
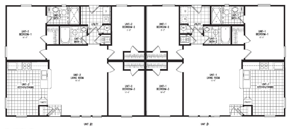
Duplex Model 8082
Duplex Model 8082
2 units
32' x 78'
1209 Living sq. ft. per unit
3 Bedrooms per unit
2 Baths per unit
phone: (888) 321-1537
email:
sales@clhcommercial.com
fax: (970) 221-1556
website design by FortCollinsWebWorks.com